



Heb je al op deze woning gereageerd? Zorg dan dat jouw voorinschrijving voltooid is, zodat je kans maakt op een bezichtiging. Helaas kunnen we niet iedereen uitnodigen.
Maak een zoekprofiel aan!
1101 CK, AMSTERDAM
Of je nu samenwoont als koppel of met een (groeiend) gezin, dit appartement geeft je de ruimte én mogelijkheden. Met twee slaapkamers bepaal je zelf hoe jouw kamers inricht: als werkplek, logeerkamer of gezinswoning. De ruime woonkamer vormt het hart van je huis, terwijl iedereen ook zijn eigen plek heeft als dat nodig is.
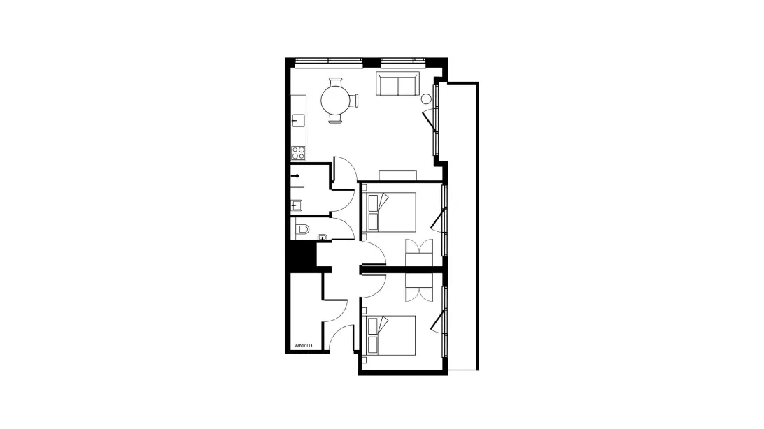
Bekijk de plattegrond voor meer details over de indeling van elke unit.
2-Bedroom Apartment
Whether you’re looking for a place to live as a couple or with your (growing) family, this layout gives you flexibility and flow. Two bedrooms mean options: home office, guest room, or a proper flatmate setup. The generous living space becomes the heart of your home, while everyone gets their own space when they need it
Please check the floor plan for more detailed information about the layout of each unit.
Deze woning is erg populair. Voor deze woning zijn al voldoende contactaanvragen binnengekomen, je kunt daarom niet meer reageren op deze woning.
Maak een zoekprofiel aan!