Maak een zoekprofiel aan!

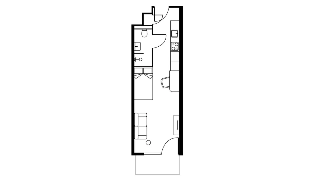
Prijs€ 932,93 p/mWoonoppervlakte30 m²Energie labelA+

Maak een zoekprofiel aan!