Maak een zoekprofiel aan!

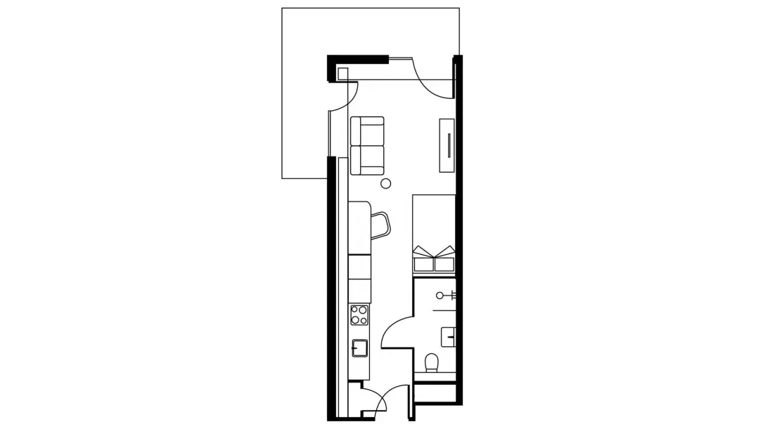
Prijs€ 713,02 p/mWoonoppervlakte29 m²Energie labelA+

Maak een zoekprofiel aan!